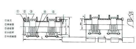
小拉杆横向型波纹补偿器使用说明: 小拉杆横向波纹补偿器除可以补偿弯曲管道的横向位移和角位移,同时也可以补偿轴向位移。我公司是波纹补偿器、不锈钢金属软管、金属软管、非金属补偿器、橡胶软接头、套筒补偿器、羞羞在线观看的专业生产制造商,是国内同类产品的大型骨干企业和制造基地。小拉杆横向波纹补偿器具有尺寸准确、表面整洁无创伤、产品结构紧凑、补偿量大、无泄漏、耐腐蚀、寿命长,便于安装、产品质量可靠等优点。同时我公司也可根据用户工作环境、条件以及疲劳破坏次数,为用户研制其它类型和用途的波纹补偿器。
豫公网安备 41910102000034号